This site uses cookies to provide essential functions, improve your experience, collect anonymous generic usage data, and to provide a personalised experience.
Bridge Street, Witney, OX28
Sold STC
Guide Price: £350,000
Property Type
Terraced
Sold STC
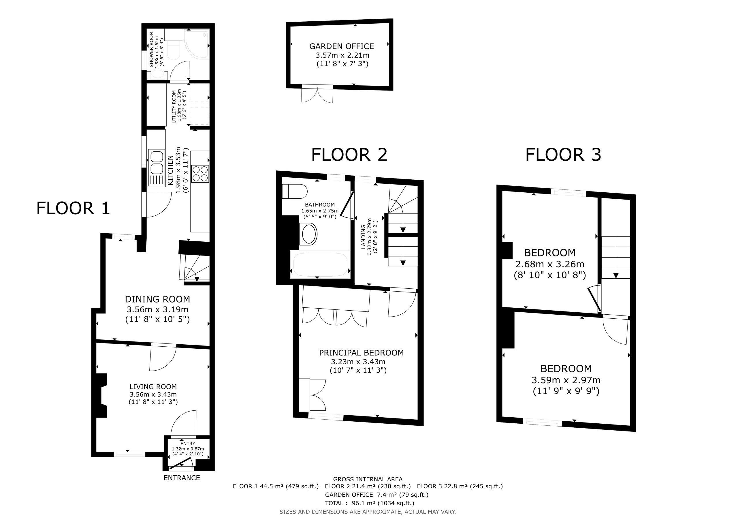
Rooms
3
2
2
Approx. Internal Area
111 sq mTenure
Freehold
Witney Estate Agents office
10 Market Square, Witney, Oxfordshire, OX28 6BB
This Property's Key Features
- CLOSE TO THE TOWN CENTRE
- GRADE II LISTED
- THREE STOREY FAMILY HOME
- DELIGHTFUL GARDEN
- TWO BATHROOMS
- EXCELLENT PRESENTATION

Have a Similar Property to Sell?
Our experts only provide valuations after a home visit to ensure a thorough review of your property, meaning you always receive an accurate price.
Witney
Our Guide to Witney
Witney is a beautiful market town surrounded by countryside and within the Cotswolds.

Want to Discuss This Property?
Contact
Witney Office
10 Market Square, Witney, Oxfordshire, OX28 6BB
Opening Hours
- Monday - Friday:9:00am - 6:00pm
- Saturday:9:00am - 1:00pm
























