LAST PLOT REMAINING - VIEWING HIGHLY RECOMMENDED
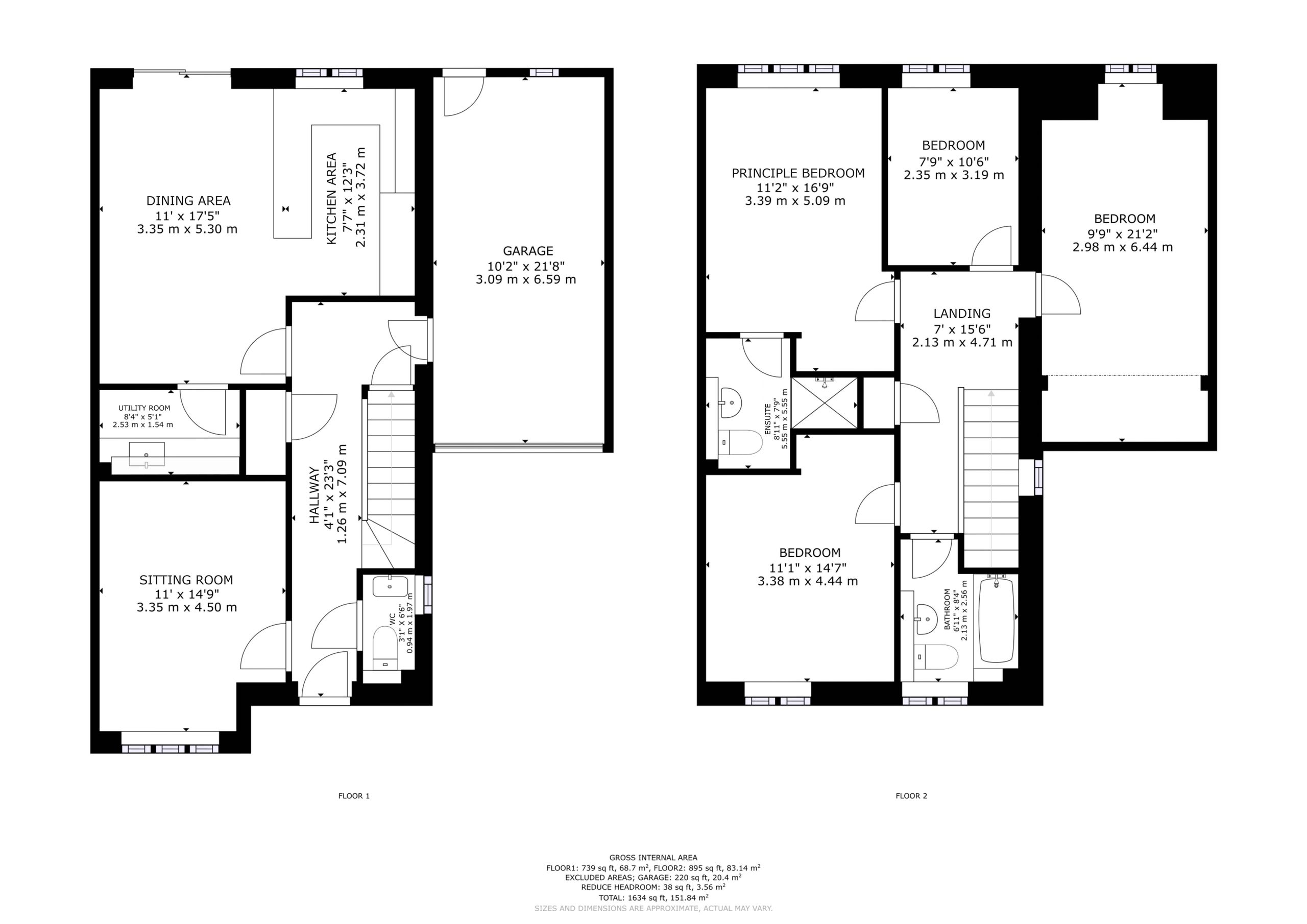
The Meadow, as the name suggests, is surrounded by open fields and countryside, just off a quiet lane that links directly to the Abingdon Road. These ready to move into homes offer stylish living space and are finished to the highest specification with excellent Eco-credentials, garage and generous garden. Lavender House is one of four semi-detached homes that may look similar from the front but internally each one has a unique style and feel. Offering spacious accommodation across two floors with potential to extend into the loft if so desired these fabulous homes are filled with natural light through ‘Smart Visofold 1,000’ bifold doors to the rear and Infinity Flush Casement windows throughout.
Each home brings together traditional construction, outstanding modern day comforts and energy saving design. The Meadow delivers way more than the customary nod in the direction of eco-friendly living, resulting in a seldom seen “A-Rated” Energy Performance Certificate. At the centre of this incredibly efficient home is a Mitsubishi Ecodan air source heat pump that gently heats the ground and first floor with under floor heating. This system also provides the domestic hot water which is backed up by an electric immersion heater and a PV solar boost. The roof mounted solar panels with inverter and export metre ensures your home will run smoothly, efficiently and cost effectively throughout the year.
The professionally designed Benchmarx kitchens have quartz work surfaces and a range of soft close cupboards and drawers at base and eye level with built in Siemens “A-Rated” appliances as standard. A Fohen 3:1 tap delivers your standard hot and cold water, filtered drinking water and instant boiling water. Main living areas are gently lit by LED recessed downlighters. The house also benefits from high speed fibre broadband.
The engineered oak fire doors complement the feature oak balustrades and hand rails to the staircase, creating a welcoming central reception area. The generous porcelain tiling in the bathrooms with the Grohe taps and shower fittings create a boutique hotel feel of simple yet top quality luxury living. Amtico flooring on the ground floor, excluding the lounge. Deanes Fitted wardrobes in the principal bedroom and bedroom 3. Each roof space has been constructed using Attic Trusses making conversion of the loft space more cost effective to future proof your stay.
The gardens are fully turfed and offer perfectly proportioned outside space seldom seen with new homes in this day and age.