This site uses cookies to provide essential functions, improve your experience, collect anonymous generic usage data, and to provide a personalised experience.
Ashwell Bank Lane, Tackley, OX5
Sold STC
Guide Price: £510,000
Property Type
Detached
Sold STC
Rooms
3
2
2
Tenure
Freehold
This Property's Key Features
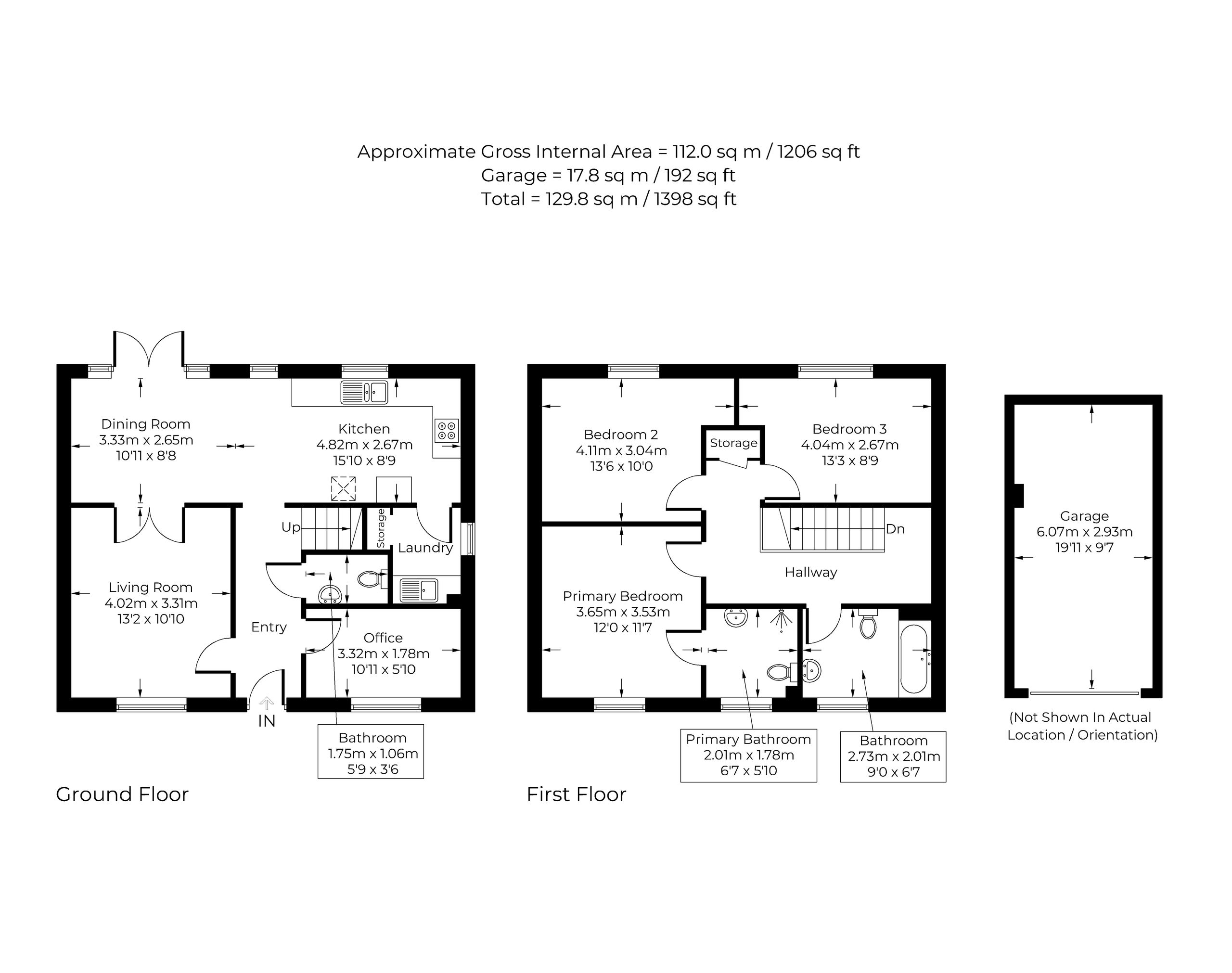
- Three bedroom detached family home in the sought after village of Tackley
- Living room, kitchen/dining room, separate study and a cloakroom to the ground floor
- Three bedrooms with an en-suite shower room to the master bedroom and a family bathroom to the first floor
- Larger than average tiered garden with patio area off the back of the property
- SIngle garage with power and light with off street parking in front
- Built in 2020 with the remainder of the 10 year NHBC being available for the property

Have a Similar Property to Sell?
Our experts only provide valuations after a home visit to ensure a thorough review of your property, meaning you always receive an accurate price.
Woodstock Estate Agent
Our Guide to Woodstock
Our local Woodstock team is made of Martyn, Cheryl, Gary and Phoebe who bring with them a wealth of local knowledge and property expertise.

Want to Discuss This Property?
Contact
Woodstock Office
34 High Street, Woodstock, OX20 1TG
Opening Hours
- Monday - Friday:9:00am - 6:00pm
- Saturday:9:00am - 1:00pm


























