This site uses cookies to provide essential functions, improve your experience, collect anonymous generic usage data, and to provide a personalised experience.
Coniston Avenue, Headington, OX3
Sold STC
Guide Price: £450,000
Property Type
Semi-detached
Sold STC
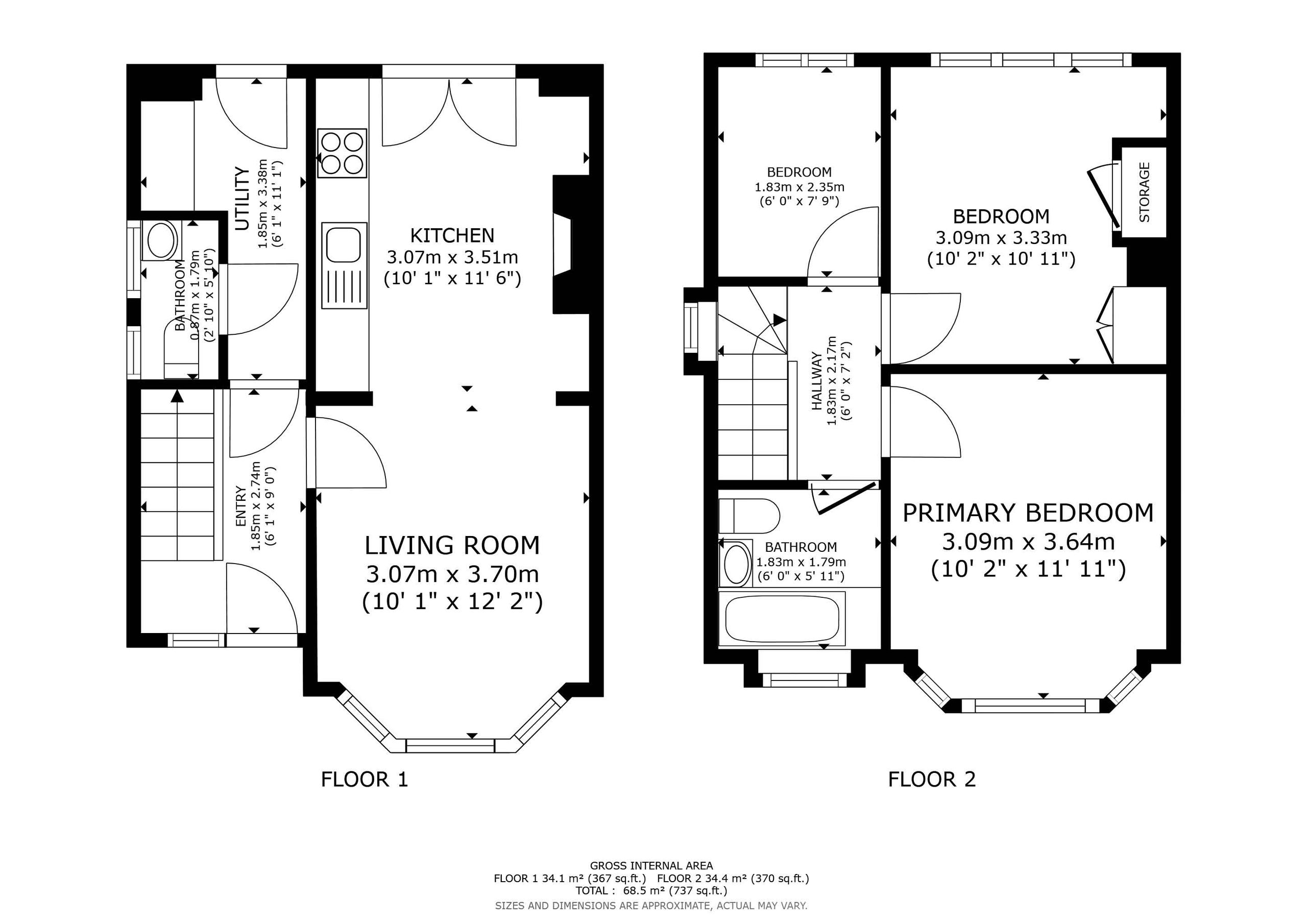
Rooms
3
2
1
Tenure
Freehold
Headington office
109 London Road, Headington, Oxford, OX3 9HZ
This Property's Key Features
- No chain
- Newly renovated throughout
- Walking distance to the JR Hospital
- Off-street parking for two vehicles
- Scope to extend (subject to planning)
- Large south facing garden

Have a Similar Property to Sell?
Our experts only provide valuations after a home visit to ensure a thorough review of your property, meaning you always receive an accurate price.
Headington
Our Guide to Headington
Say hello to Headington! An eastern suburb of Oxford, Headington is situated at the top of Headington Hill.

Want to Discuss This Property?
Contact
Headington Office
109 London Road, Headington, Oxford, OX3 9HZ
Opening Hours
- Monday - Friday:9:00am - 6:00pm
- Saturday:9:00am - 1:00pm
















