This site uses cookies to provide essential functions, improve your experience, collect anonymous generic usage data, and to provide a personalised experience.
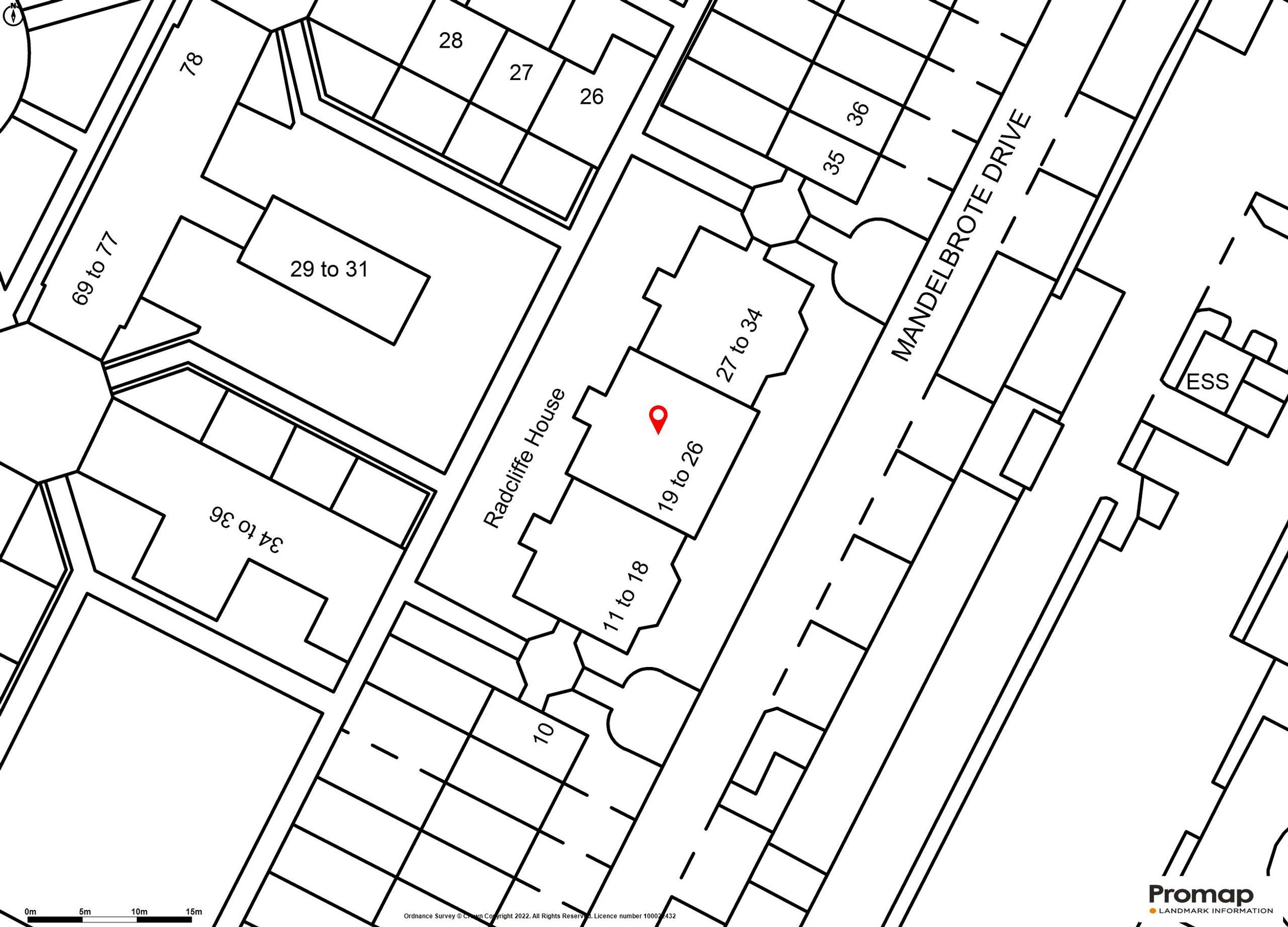
Mandelbrote Drive, Littlemore, OX4
Sold STC
Guide Price: £300,000
Property Type
Flat
Sold STC
Rooms
2
2
1
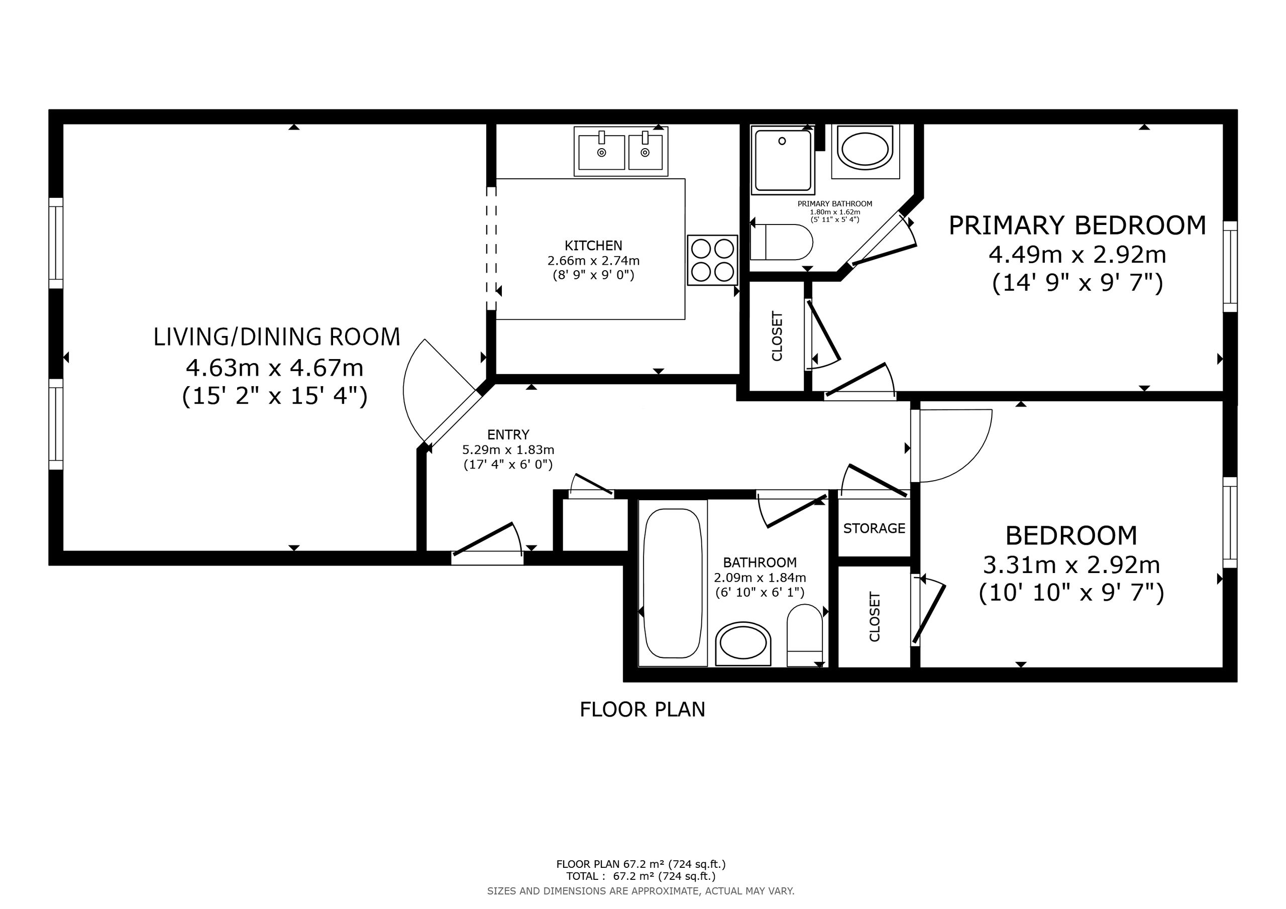
Approx. Internal Area
67 sq mTenure
Share of Freehold
This Property's Key Features
- No onward chain
- Share of freehold
- Allocated parking
- Easy access to Science and Business Parks
- Stunning communal gardens
- Private gated development

Have a Similar Property to Sell?
Our experts only provide valuations after a home visit to ensure a thorough review of your property, meaning you always receive an accurate price.
Oxford City Centre
Our Guide to Oxford
Oxford City! This city is world-famous due to The University of Oxford, having seen many scholars come and go and even being home to royalty at times!

Want to Discuss This Property?
Opening Hours
- Monday - Friday:9:00am - 6:00pm
- Saturday:9:00am - 1:00pm












