This site uses cookies to provide essential functions, improve your experience, collect anonymous generic usage data, and to provide a personalised experience.
Marriott Close, Oxford, OX2
Sold STC
Guide Price: £325,000
Property Type
Terraced
Sold STC
Rooms
2
1
1
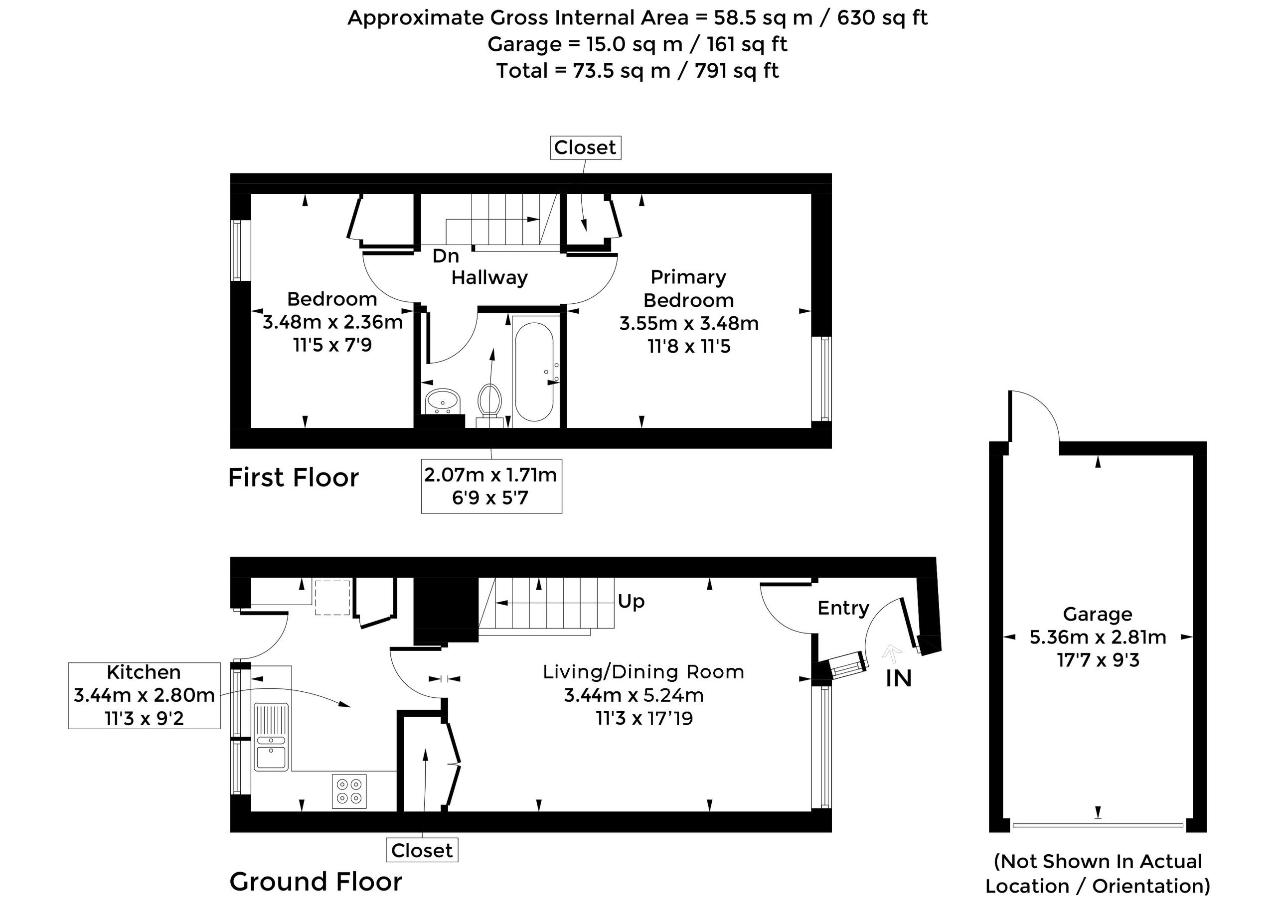
Approx. Internal Area
73 sq mTenure
Freehold
Summertown & North Oxford Estate Agents office
Twining House, 294 Banbury Road, Oxford, OX2 7ED
This Property's Key Features
- Two Bedroom End of Terrace
- East Facing Reception Room
- Integrated Kitchen
- Two Double Bedrooms
- Family Bathroom
- West Facing Lawn Garden
- Within Walking Distance to 42 Hectares of Cutteslowe Park
- A Mile from Summertown and its Shopping, Restaurants and Cafes

Have a Similar Property to Sell?
Our experts only provide valuations after a home visit to ensure a thorough review of your property, meaning you always receive an accurate price.
Things to do in Summertown
Our Guide to Summertown
Set at the heart of North Oxford, Summertown is a bustling residential area with a thriving high street with access to great schools.

Want to Discuss This Property?
Contact
Summertown Office
Twining House, 294 Banbury Road, Oxford, OX2 7ED
Opening Hours
- Monday - Friday:9:00am - 6:00pm
- Saturday:9:00am - 1:00pm









