Situated in a quiet cul-de-sac on Orchard Close in Oakley, this light, spacious and versatile detached family home offers well-balanced accommodation and a particularly pleasant setting, with open fields located just at the end of the cul-de-sac.
The property has been thoughtfully improved by the current owners in recent years, including the conversion of the fourth bedroom into a stylish en-suite shower room, enhancing the principal bedroom suite. A superb garden office with electricity, aircon and WIFI has been added, providing an excellent space for home working, hobbies, or a quiet retreat away from the main house.
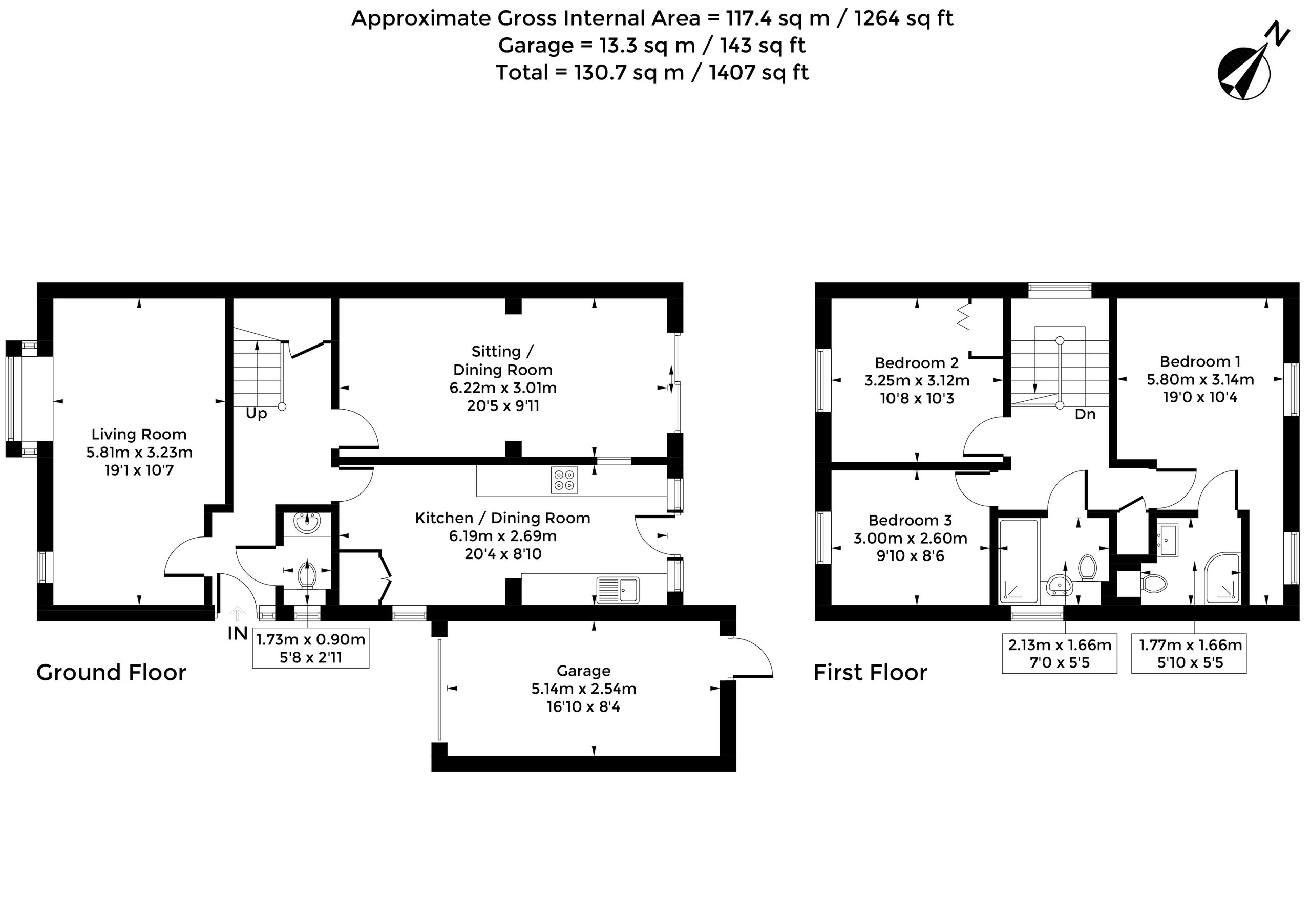
The ground floor offers generous and flexible living space, including a bright living room to the front, a spacious sitting/dining room ideal for entertaining, and a well-proportioned kitchen/dining room overlooking the garden. A convenient cloakroom completes the ground-floor accommodation.
Upstairs, the first floor provides three well-sized bedrooms. The principal bedroom benefits from the recently created en-suite shower room, while the remaining bedrooms are served by a modern family bathroom.
Externally, the property enjoys a generous rear garden which is mainly laid to lawn, complemented by a patio area ideal for outdoor dining and a charming water feature that adds to the sense of tranquillity. The recently added garden office sits within the garden and is a particularly valuable addition for modern lifestyles. Access to the garage from the garden is a convenient benefit.
To the front, a driveway provides parking for up to three vehicles and leads to the garage.
Ochard Close is located within the sought-after village of Oakley, which has a pre-school, primary school, pub, garage and shop, combining peaceful surroundings and convenient access to countryside walks right from the end of the road. The market town of Thame is less than a twenty-minute drive where a wider range of shops and facilities can be found. Oxford, the city of academia and dreaming spires, is approximately 10 miles away. Haddenham and Thame Parkway railway station has frequent services to London Marylebone (fastest train 34 minutes), as does Bicester, with its international Designer shopping area, and railway stations to Oxford and London. The M40 is a short drive away, giving access to London, Birmingham and the northern networks.
This is a wonderful opportunity to acquire a bright and adaptable family home in a sought-after village location, combining peaceful surroundings with convenient access to countryside walks right from the end of the road.