This site uses cookies to provide essential functions, improve your experience, collect anonymous generic usage data, and to provide a personalised experience.
Oxford Street, Woodstock, OX20
Guide Price: £900,000
Property Type
Detached
Rooms
3
2
1
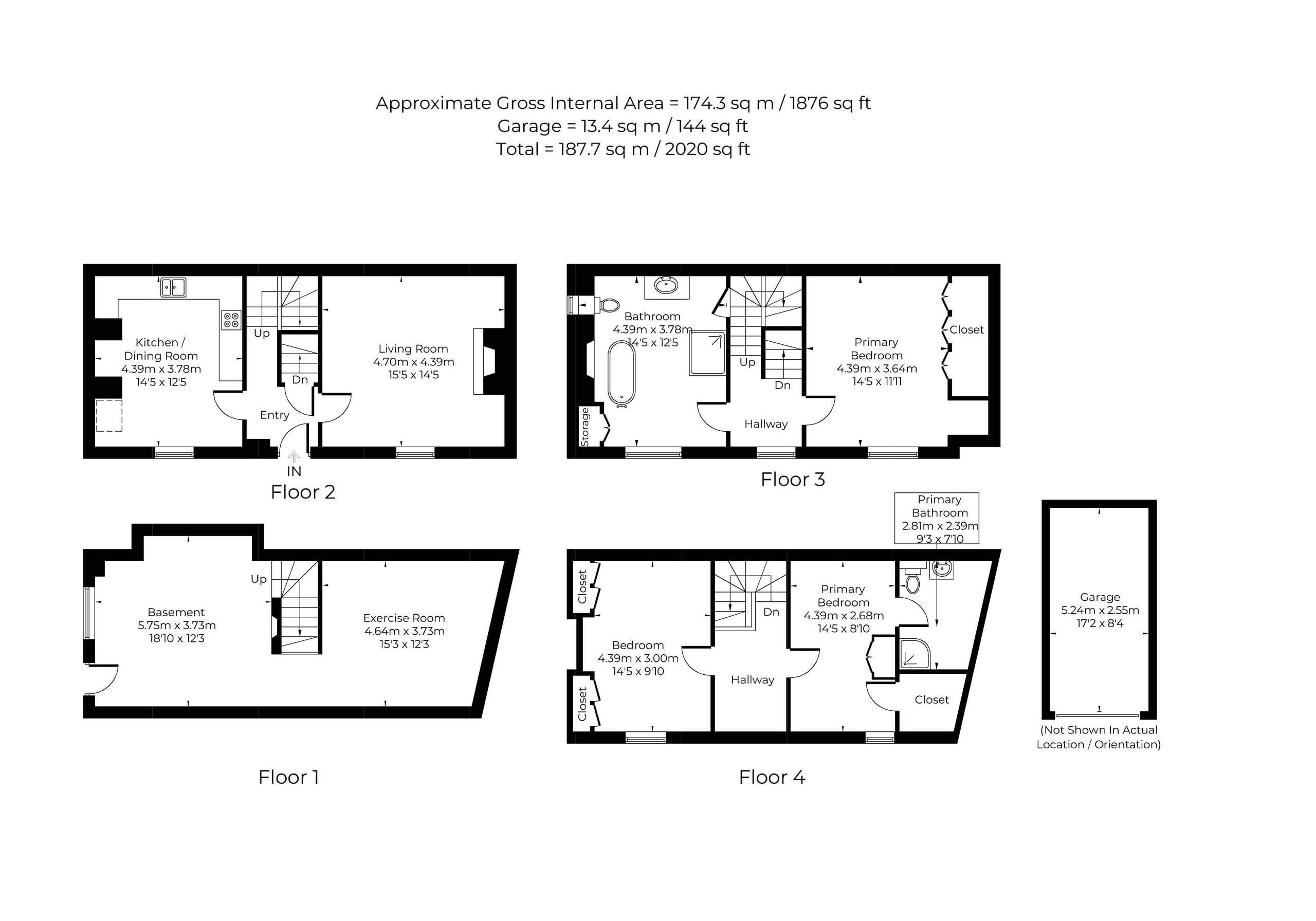
Approx. Internal Area
185 sq mTenure
Freehold
This Property's Key Features
- A prominent 18th century Grade II listed home located in Woodstock, within striking distance of the centre of town and it's many amenities.
- Tall ceilings and large sash windows facing southwest, inviting a wonderful quality of natural light into each space.
- Carefully maintained by the current owner, demonstrating an effortless marriage between old and new.
- A large reception room with wood burning stove and a bespoke kitchen/dining room.
- Three double bedrooms, including a principle bedroom with adjacent family bathroom and a further en suite on the top floor.
- A large, barrelled ceiling basement with its own external door and window, and previously approved planning permission to convert.
- Driveway parking with electric charging point and a single garage in an adjacent block.
- Southwest facing walled garden with large lawn, pergola and seating area.

Have a Similar Property to Sell?
Our experts only provide valuations after a home visit to ensure a thorough review of your property, meaning you always receive an accurate price.
Woodstock Estate Agent
Our Guide to Woodstock
Our local Woodstock team is made of Martyn, Cheryl, Gary and Phoebe who bring with them a wealth of local knowledge and property expertise.

Want to Discuss This Property?
Contact
Woodstock Office
34 High Street, Woodstock, OX20 1TG
Opening Hours
- Monday - Friday:9:00am - 6:00pm
- Saturday:9:00am - 1:00pm




























