This site uses cookies to provide essential functions, improve your experience, collect anonymous generic usage data, and to provide a personalised experience.
Rectory Lane, Bowley House Rectory Lane, OX20
Guide Price: £285,000
Property Type
Flat
Rooms
2
1
1
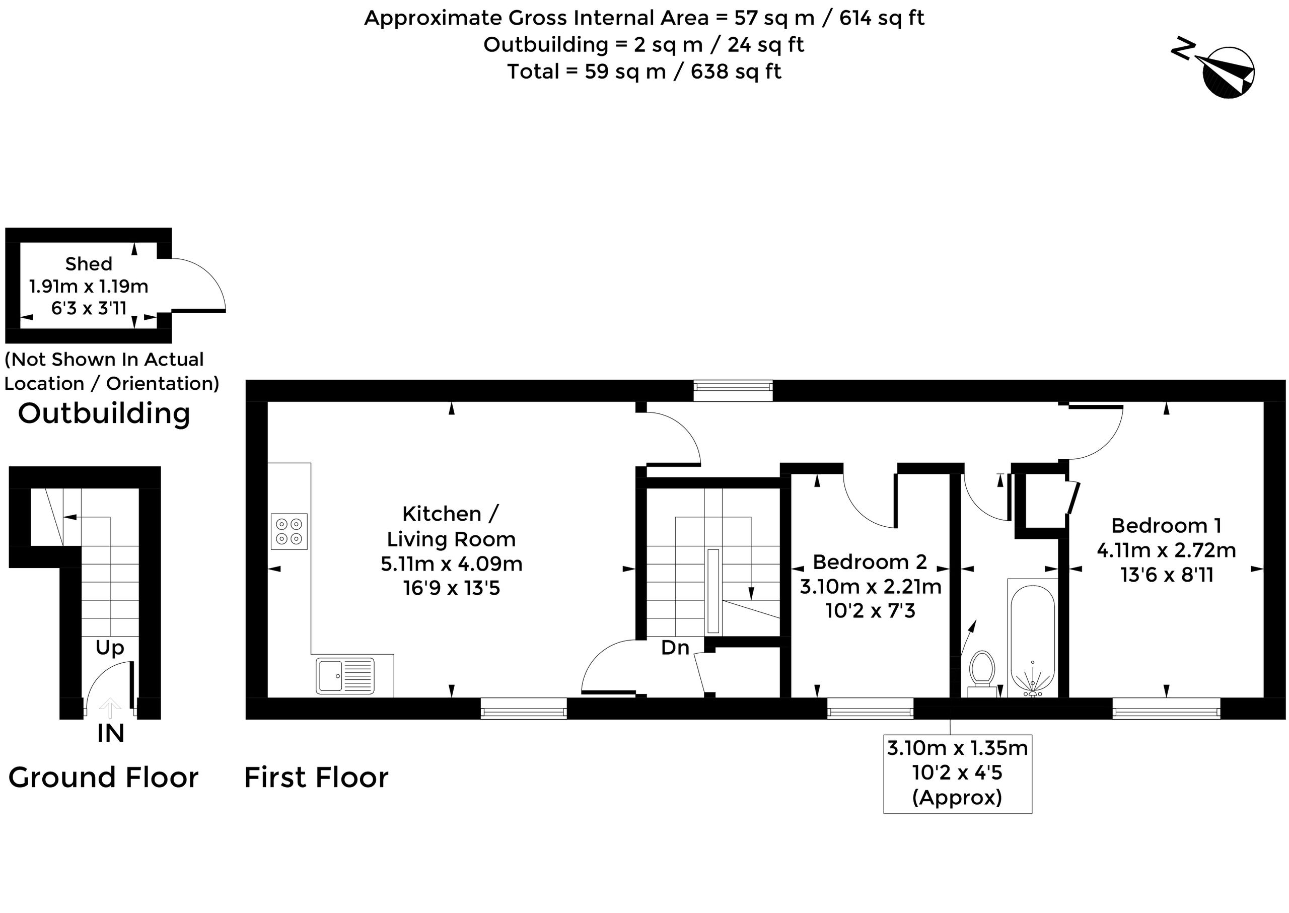
Approx. Internal Area
57 sq mTenure
Leasehold
Woodstock Sales & Letting Agents office
34 High Street, Woodstock, OX20 1TG
This Property's Key Features
- Two bedroom, first floor apartment close to Woodstock town centre
- Open plan living/kitchen space with two windows, allowing lots of natural light in
- Two bedrooms with one currently being used as an office space and a bathroom
- Useful storage shed space in the courtyard area of Bowley House
- Shared private courtyard area in front of the apartment

Have a Similar Property to Sell?
Our experts only provide valuations after a home visit to ensure a thorough review of your property, meaning you always receive an accurate price.
Woodstock Estate Agent
Our Guide to Woodstock
Our local Woodstock team is made of Martyn, Cheryl, Gary and Phoebe who bring with them a wealth of local knowledge and property expertise.

Want to Discuss This Property?
Contact
Woodstock Office
34 High Street, Woodstock, OX20 1TG
Opening Hours
- Monday - Friday:9:00am - 6:00pm
- Saturday:9:00am - 1:00pm

















