This site uses cookies to provide essential functions, improve your experience, collect anonymous generic usage data, and to provide a personalised experience.
Baynhams Drive, Wolvercote, OX2
Sold STC
Guide Price: £825,000
Property Type
Terraced
Sold STC
Rooms
4
2
1
Approx. Internal Area
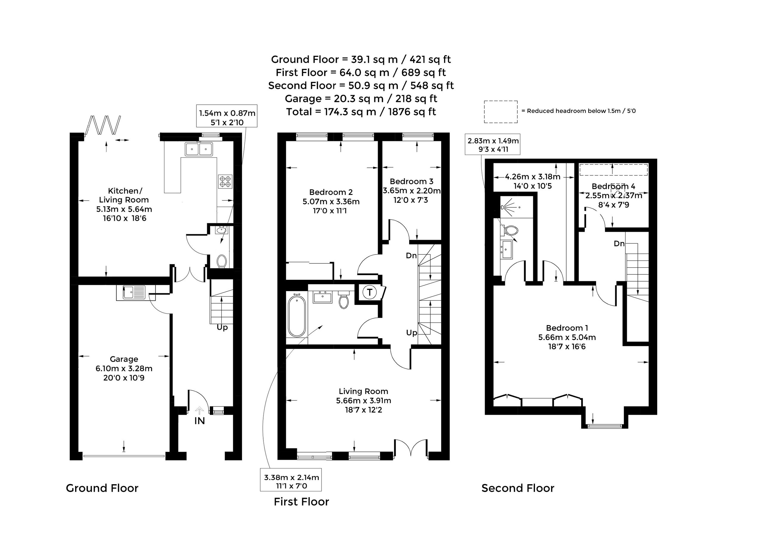
174 sq mTenure
Freehold
Summertown & North Oxford Estate Agents office
Twining House, 294 Banbury Road, Oxford, OX2 7ED
This Property's Key Features
- Four Bedroom Home with Over 1,800 Sq ft
- Master Bedroom with En-Suite and Walk-In Wardrobe
- High Specification Throughout
- New Build Warranty and End of Chain
- Integral Garage with EV Car Charger
- Bright Reception Room with Juliette Balcony
- Generous Kitchen and Dining Area
- Wolvercote Primary and Cherwell School Catchment Area
- Enjoy the Outdoors of Wolvercote Meadow
- Amenities of Summertown are One Mile Away

Have a Similar Property to Sell?
Our experts only provide valuations after a home visit to ensure a thorough review of your property, meaning you always receive an accurate price.
Things to do in Summertown
Our Guide to Summertown
Set at the heart of North Oxford, Summertown is a bustling residential area with a thriving high street with access to great schools.

Want to Discuss This Property?
Contact
Summertown Office
Twining House, 294 Banbury Road, Oxford, OX2 7ED
Opening Hours
- Monday - Friday:9:00am - 6:00pm
- Saturday:9:00am - 1:00pm



















