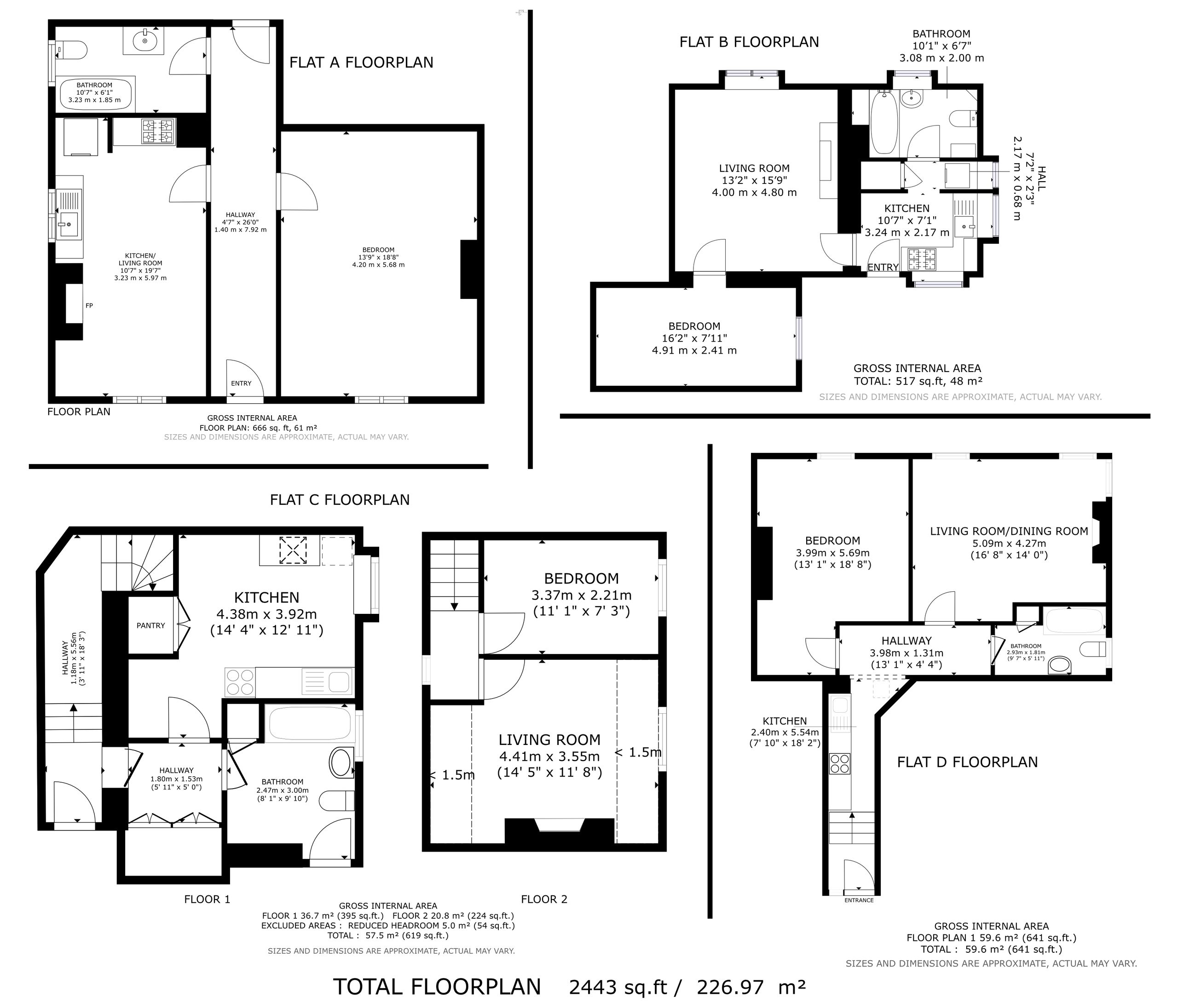
An excellent opportunity to acquire a well-located freehold residential investment in the centre of Witney, comprising four self-contained apartments arranged over ground, first and loft levels. The property has been held within the same family ownership for many years and offers a rare chance to acquire a stable, income-producing asset with immediate scope for improvement and rental growth. 1 Bridge Street is an established residential investment property comprising four individual apartments, each self-contained and let on fully compliant tenancies in line with the Renters Right Act. The building is well configured, providing a mix of accommodation across multiple floors, with a total internal area of approximately 2,443 sq ft. Whilst the property has been well maintained, most units would now benefit from a programme of light cosmetic refurbishment. This presents a clear opportunity for an incoming purchaser to enhance both the rental income and overall capital value of the asset.
The property is fully let and currently produces a gross annual income of £42,600. The current rental levels are considered below market value, reflecting the condition of some units and the historic nature of the landlord-tenant relationship. Based on recent letting evidence within the building and comparable local stock, the estimated fully improved rental income is in the region of £50,400 per annum. By way of example, Flat C was historically let at £800 PCM. Following a simple redecoration programme, the property was re-let at £1,000 PCM within one week, clearly demonstrating the achievable uplift through modest expenditure.
Asset Management & Value-Add Opportunity - This investment offers a straightforward and attractive asset management angle:
Incremental rental growth through cosmetic upgrading
Opportunity to improve specification and presentation across all units
Ability to standardise rental levels
Potential EPC improvements (notably Flat D – currently rated E)
Strong letting demand for well-presented town centre apartments
The projected uplift from £42,600 to £50,400 per annum represents an increase of approximately 18%, providing both enhanced income return and capital value growth.
Pricing Justification
The freehold interest is offered at a guide price of £750,000. At this level, the property reflects:
The pricing positions the asset competitively within the market, reflecting both the existing secure income stream and the clear opportunity to enhance returns through active management. Comparable investments of a similar nature, particularly those offering reversionary potential, are increasingly sought after by investors seeking a balance between income security and growth. The ability to achieve rental uplift through relatively modest capital expenditure further underpins the attractiveness of this opportunity.
Full tenancy schedule available upon request. To minimise disruption to the tenants, viewings are strictly by appointment only and will be arranged with purchasers once the preliminary due diligence process has been completed.
This is an excellent opportunity to acquire a well-located, fully let residential investment in a strong Oxfordshire market town, offering both immediate income and clear scope for future growth.
Council Tax B - £1,965.78 each apartment.