This site uses cookies to provide essential functions, improve your experience, collect anonymous generic usage data, and to provide a personalised experience.
Brill Road, Horton-Cum-Studley, OX33
Sold STC
Guide Price: £695,000
Property Type
Detached
Sold STC
Rooms
4
3
2
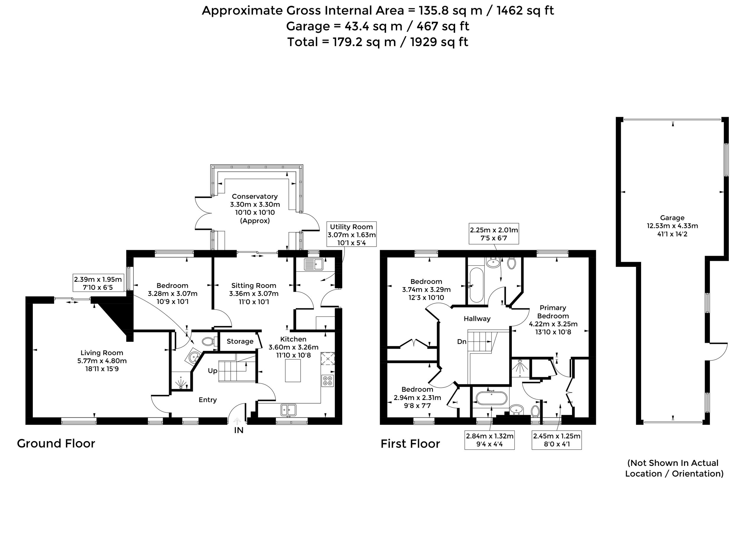
Approx. Internal Area
179 sq mTenure
Freehold
Headington & East Oxford Estate Agents office
109 London Road, Headington, Oxford, OX3 9HZ
This Property's Key Features
- Set within 0.46 acres in the sought-after village of Horton-cum-Studley
- Countryside views
- Family home offering versatile living space
- Large sweeping driveway and triple garage

Have a Similar Property to Sell?
Our experts only provide valuations after a home visit to ensure a thorough review of your property, meaning you always receive an accurate price.
Headington
Our Guide to Headington
Say hello to Headington! An eastern suburb of Oxford, Headington is situated at the top of Headington Hill.

Want to Discuss This Property?
Contact
Headington Office
109 London Road, Headington, Oxford, OX3 9HZ
Opening Hours
- Monday - Friday:9:00am - 6:00pm
- Saturday:9:00am - 1:00pm



























