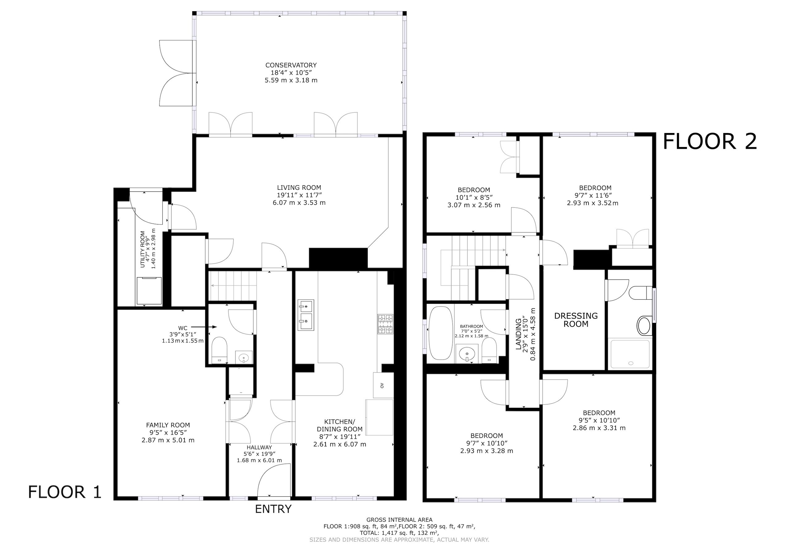
Shepherds Farm enjoys a prime spot in the heart of this desirable village with its thriving community, local shops, primary school and the mainline rail link to Oxford/Paddington. In the same family ownership for almost 30 years this superb home offers generous accommodation over two floors alongside beautiful views across the Blenheim Estate that can be enjoyed from not only the garden but also the conservatory, and first floor windows. Set around a working fireplace the sitting room is a super space for family relaxing with double doors opening to the large conservatory with underfloor heating, a wonderful area for the family to gather whilst taking in the truly beautiful views. The reception room to the front is an ideal playroom/study but is currently set with a built-in cinema screen, projector, and surround sound system. The modern gloss kitchen offers a wide range of units with built-in Bosch appliances, an American fridge freezer with plumbed-in ice machine and built-in ceiling speakers. There is also space for a table and chairs. The WC and utility area with door to the garden complete this excellent ground floor picture. To the first floor the principal bedroom has an ensuite shower room with the three further bedrooms being well-served by the modern bathroom.
Delightful, generous gardens to the rear are laid mainly to lawn with a vast array of mature shrubs and trees including plum, pear and vine. The whole affords a high degree of privacy, and the superb decked area offers space for some alfresco dining or just a glorious place to sit and enjoy the views across the seasons. To the front the driveway offers parking for three cars with two useful storage sheds. Overall, Long Hanborough is the epitome of village living with just enough day-to-day amenities, nearby schooling yet within a short drive of both Woodstock and the vibrant town of Witney. An appointment to view is highly recommended.
Long Hanborough is well positioned in the triangle between Witney, Oxford and Woodstock. Its facilities include a primary school, doctors surgery, pharmacy, dentist, Co-op store with late night opening hours, post office, hairdressers, two public houses, petrol station and garage. The village is well placed for access to major routes including the A40 and A44. Local secondary schools include Bartholomew School in Eynsham and Marlborough School in Woodstock. There are local, daily bus services to Witney, Woodstock and Oxford. Woodstock 3 miles, Witney 6 miles, Oxford 9 miles.